3 700 000 Р 46 750 $ или 40 290

Информация об помещении

1
Этаж

Состояние и оснащение

Количество этажей
9
Развернуть
Агент
+7 (983) 340-55-27
Начать чат с агентом

Помещение свободного назначения в Томская область, Северск ...

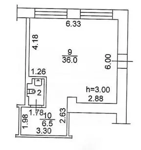
Коммерческое помещение площадью 265 кв. м расположено в подвальном этаже дома 151 по проспекту Коммунистическому в Северске. Объект обладает двумя независимыми входами с улицы, что обеспечивает удобный доступ для клиентов и позволяет зонировать пространство под разные бизнес-задачи. Ключевым преимуществом является расположение в непосредственной близости от остановки общественного транспорта и парковочных мест, гарантирующее высокую проходимость и доступность. Помещение полностью подготовлено к эксплуатации: подключены все необходимые инженерные системы, включая отопление, водоснабжение, водоотведение и электричество. Высота потолков 3.3 метра. в зоне под теплосетями 2.35 метра. Частично выполнен косметический ремонт, а оставшийся строительный материал позволяет производить отделку в соответствии с вашими требованиями. Такая комплектация предлагает значительную экономию на стартовых вложениях и сокращает время на запуск бизнеса. Помещение подходит для организации розничной торговли, оказания услуг, общественного питания или офисного пространства. Высокая транспортная доступность и наличие инфраструктуры создают предпосылки для стабильного потока посетителей. Текущее состояние объекта позволяет начать работу в сжатые сроки, минимизировав подготовительные затраты. Код пользователя: 164055Номер в базе:

Читать полностью
    Позвонить Написать
    3 700 000 Р46 750 $ или 40 290
    Агент
    +7 (983) 340-55-27
    Начать чат с агентом
    Похожие предложения
    Помещение свободного назначения в Томская область, Асино ул. ... - Фото 1
    Помещение свободного назначения в Томская область, Асино ул. ... - Фото 2
    Продам нежилое помещение с отдельным входом.План объекта представлен в разделе фотографий. В помещении высокие потолки, сан.узел. Можно под парикмахерскую, пункт выдачи,аптеку и т.д.можно под аренду Все вопросы по телефону, звоните . ...
    • 1/5 эт.
    3 800 000 Р
    Агент
    +7 (913) Показать номер
    Посмотреть контакты
    Помещение свободного назначения в Томская область, Томск Нижний пер., ... - Фото 1
    Помещение свободного назначения в Томская область, Томск Нижний пер., ... - Фото 2
    Коммерческое помещение / выгодная локация / высокий трафикПродаётся коммерческое помещение в Томске. Отличное решение для бизнеса и инвестиций. Удачное расположение, удобный подъезд и высокая проходимость делают объект максимально ликвидным. Характеристики:...
    • -1/9 эт.
    3 600 000 Р
    Агент
    +7 (913) Показать номер
    Посмотреть контакты
    Помещение свободного назначения в Томская область, Томск ул. Ференца ... - Фото 1
    Помещение свободного назначения в Томская область, Томск ул. Ференца ... - Фото 2
    Продам нежилое помещение под любой вид деятельности. Большой тамбур, отдельный вход. На данный момент в помещении находится ювелирная мастерская и комиссионный магазин, можно приобрести как готовый бизнес, либо под сдачу. Удачное месторасположение с торцевой...
    • 1/9 эт.
    3 600 000 Р
    Агент
    +7 (913) Показать номер
    Посмотреть контакты
    Помещение свободного назначения в Томская область, Томск ул. ... - Фото 1
    Помещение свободного назначения в Томская область, Томск ул. ... - Фото 2
    Арт.Продается нежилое помещение свободного назначения на первом этаже в кирпичном доме нового типа. В помещении присутствует центральное отопление, подключено электричество, площадь по документам 33,8 квадратных метров., в комнате два окна, т.е. есть...
    • 1/1 эт.
    3 600 000 Р
    Агент
    +7 (913) Показать номер
    Посмотреть контакты
    Помещение свободного назначения в Москва Кирпичная ул., 41С15 (12 м) - Фото 1
    Помещение свободного назначения в Москва Кирпичная ул., 41С15 (12 м) - Фото 2
    ПРОДАЖА коммерческого помещения в бизнес-квартале на ул. Кирпичная, 41 в Москве БЫСТРАЯ СДЕЛКА Бесплатное сопровождение на всех этапах.Рассрочка, лизинг, ипотека Бизнес-квартал расположен на Востоке столицыв районе Соколиной горы.Он состоит из двух одноэтажных...
    • 2/2 эт.
    3 781 020 Р
    Агент
    +7 (923) Показать номер
    Посмотреть контакты

    Не нашли подходящего объявления?

    Оставьте заявку, и наши риэлторы подберут псн в районе Северска

    (0)