190 440 Р 2 500 $ или 2 150

Информация о помещении и здании

1
Этаж
6
Этажность
Развернуть
Агент
+7 (913) 810-76-85
Начать чат с агентом

Офис в Томская область, Северск ул. Свердлова, 7 (476 м)

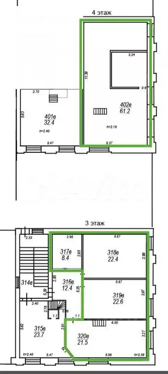
Сдам Офис площадью 476,1 м ( г Северск ул Свердлова 7). Дом: тип строения - административно-жилое, материал стен - кирпичный, этаж - 1, этажность - 6, высота потолка - 3,2. Особенности: парковка на улице, охрана, класс b+, доступ на объект 7*24, сигнализация. Дополнительно: интернет. Особенности строения: отд. вход с улицы. Состояние: евроремонт. Освобождается помещение в Северске Томской области по адресу: ул. Свердлова, 7.Помещение свободного назначения: офисное, медицинские услуги, дополнительное образование, детское творчество.Помещение с современным ремонтом, выполненным в соответствии с жёсткими медицинскими требованиями.Занимает первый и подвальный этаж 5-ти этажного здания.- Здание класса C ;- технические помещения и необходимое оборудование, а также уровень обслуживания здания полностью соответствуют стандартам строений класса В+;- Интернет, телефония, охрана;- Охранно-пожарная сигнализация;- Новый ремонт;- Два отдельных входа, запасной выход;- Общая площадь 751,9 м2;- Площадь первого этажа 476,1 м2;- Площадь подвала 275,8 м2.Рядом расположены:•Администрация города, центральная площадь Ленина-4 мин ходьбы•Северский природный парк-0 мин ходьбы•Остановки общественного транспорта-1 мин ходьбы•Управление МВД РФ по Северску-2 мин ходьбы•Здесь Вы можете написать любое учреждение-макс. 10 мин ходьбыСдаётся первый этаж с правом пользования подвальным помещением.Ставка аренды-/м2/месяц.Итого за всё помещение включая пользование подвалом 476,1 м2 х 400 Р = 190 440 Р.Дополнительно оплачиваются коммунальные услуги.Прямой представитель собственника Звоните в любое время

Читать полностью
    Позвонить Написать
    190 440 Р2 500 $ или 2 150
    Агент
    +7 (913) 810-76-85
    Начать чат с агентом
    Похожие предложения
    Офис в Свердловская область, Екатеринбург ул. Толмачева, 9 (112 м) - Фото 1
    Офис в Свердловская область, Екатеринбург ул. Толмачева, 9 (112 м) - Фото 2
    1-й этаж, всего 7 этажей

    Предлагается в аренду торгово-офисное помещение, расположенное по адресу:г. Екатеринбург, ул. Толмачева, 9.Характеристики помещения:Общая площадь - 112 кв.м.1 этаж.Отдельный вход.Есть вход со двора для разгрузки.Место под размещение вывески. Хороший ремонт....
    • 1/7 эт.
    190 400 Р
    Агент
    +7 (981) Показать номер
    Посмотреть контакты
    Офис в Москва Высоковольтный проезд, 7 (84 м) - Фото 1
    Офис в Москва Высоковольтный проезд, 7 (84 м) - Фото 2
    1-й этаж, всего 2 этажа

    БЕЗ КОМИССИИ Бизнес-центр. Сдаётся под офис, магазин (кроме продуктового) или салон помещение свободной планировки с санузлом на первом этаже площадью 84 кв.м с отдельным входом с улицы. Стандартная отделка. Электрическая мощность 25 кВт.НДС включен....
    • 1/2 эт.
    182 000 Р
    Агент
    +7 (915) Показать номер
    Посмотреть контакты
    Офис в Москва Мясницкая ул., 40С1 (18 м) - Фото 1
    Офис в Москва Мясницкая ул., 40С1 (18 м) - Фото 2
    3-й этаж, всего 3 этажа

    Смарт-офис | Чистые пруды | Всё включено - Москва, 5 мин. от м. Чистые пруды - Офис в современном пространстве класса Б - Смарт-инфраструктура, готовая к работеВсё уже включено — просто заезжайте и работайте:-Полностью меблированный офис-Высокоскоростной...
    • 3/3 эт.
    180 000 Р
    Агент
    +7 (983) Показать номер
    Посмотреть контакты
    Офис в Севастополь ул. Генерала Хрюкина, 1А (180 м) - Фото 1
    Офис в Севастополь ул. Генерала Хрюкина, 1А (180 м) - Фото 2
    3-й этаж, всего 4 этажа

    На Первой Линии пр-кт Генерала Острякова Сдается в аренду Новое Офисное помещение, площадью 180 кв.м. Состоит из двух этаже - третий и четвертый + два санузла и Видовая терраса. Густонаселенный спальный жилой массив Большая парковка Напротив Новый ТЦ...
    • 3/4 эт.
    180 000 Р
    Агент
    +7 (918) Показать номер
    Посмотреть контакты
    Офис в Ульяновская область, Ульяновск ул. Орлова, 28/58 (250 м) - Фото 1
    Офис в Ульяновская область, Ульяновск ул. Орлова, 28/58 (250 м) - Фото 2
    2-й этаж, всего 3 этажа

    Сдаётся в аренду офисное помещение площадью 250 кв.м. Находится на втором этаже. Можно увеличить ещё на такую же площадь (+ третий этаж). Доступ без ограничений по времени. За более подробной информацией позвоните по телефону, указанному в объявлении,...
    • 2/3 эт.
    180 000 Р
    Агент
    +7 (917) Показать номер
    Посмотреть контакты

    Не нашли подходящего объявления?

    Оставьте заявку, и наши риэлторы подберут офис в районе Северска

    (0)