Россия, Томская область, Томск, 1-я Заречная улица, 6/1
13 000 000 Р 159 800 $ или 138 000

Информация о коттедже

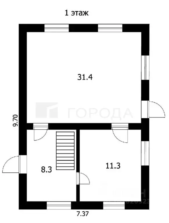
82 м2
Площадь
1
Этажность
10 cоток
Участок

Дополнительная информация

Дом продаётся вместе с участком
есть
Развернуть
Агент
+7 (913) 852-30-24
Начать чат с агентом

Коттедж в Томская область, Томск пос. Заречный, ул. 1-я Заречная, 6/1 ...

Предлагаем к продаже просторный, уютный деревянный дом с земельным участком 10 соток. Назначение: Земли ИЖС. Здесь каждый уголок пропитан теплом и заботой, а качественный, современный ремонт создаёт неповторимую атмосферу гармонии и спокойствия. Вас ждет просторный деревянный дом, построенный с любовью, с грамотной планировкой и вниманием к каждой детали. Отопление в доме газовое, вода центральная, канализация септик. Санузел совмещенный, в кафеле. Есть высокий мансардный этаж, с возможностью утепления и увеличения площади дома в два раза Там можно создать светлое и уютное пространство для творчества, отдыха или обустройства дополнительных комнат. По площади всего дома обустроен надежный подвал: идеальное место для хранения запасов и консервации, обеспечивающее прохладу в жаркий день. На территории дома расположен большой гараж на четыре машины. Уютная беседка это прекрасное место для семейных обедов на свежем воздухе и теплых разговоров с друзьями. Настоящая русская баня: Отличное место для релаксации и оздоровления, просторная парная, мойка с полами в кафеле и с подогревом. В баню проведено отопление, круглый год тепло, есть душ, установлен бойлер. В огороде две большие теплицы под помидоры и огурцы, грядки, разные плодовые кустарники. Все дорожки выложены тротуарной плиткой, можно из дома в тапочках гулять. Вместительный дровник, сарай под садовую утварь, всё сделано в едином стиле. Очень удачное расположение дома, до остановки пять минут ходьбы. Можно уехать в любую точку города. Здесь, в тиши и уединении наслаждайтесь спокойствием и гармонией с природой. Дышите свежим воздухом, выращивайте собственные овощи и ягоды. Создавайте теплые воспоминания и проводите время с близкими в уютной атмосфере. Не упустите возможность стать владельцем этого райского уголка Позвоните прямо сейчас, чтобы договориться о просмотре и ощутить магию этого дома лично Ваш дом мечты ждет именно вас Арт.

Читать полностью

    Для того, чтобы купить 1-этажный коттедж по адресу: Томск, 1-я Заречная улица, 6/1, позвоните по телефону +7 (913) 852-30-24. Торопитесь! Объявление №50016494386 о продаже одноэтажного коттеджа опубликовано 08 ноября 2025.

    Позвонить Написать
    13 000 000 Р159 800 $ или 138 000
    Агент
    +7 (913) 852-30-24
    Начать чат с агентом
    Похожие предложения
    Дом в Томск, микрорайон Наука, улица Большакова, 1 (131 м) - Фото 1
    Дом в Томск, микрорайон Наука, улица Большакова, 1 (131 м) - Фото 2
    2 этажа, общая площадь 131м², участок 7 соток

    Предлагается любая форма расчета , материнский капитал . Рассмотрим вариант трейд-ина Готовый дом 2025 года постройки Без обременений Продажа от застройщика Про дом: 2-х этажный дом из кирпича в современном стиле Высокие потолки 3,2 метра...
    • 2 эт.
    • 131 м²
    • 7 сот.
    12 500 000 Р
    Агент
    +7 (962) Показать номер
    Посмотреть контакты
    Дом в Томская область, Томск пос. Кузовлево, Советская ул. (269 м) - Фото 1
    Дом в Томская область, Томск пос. Кузовлево, Советская ул. (269 м) - Фото 2
    2 этажа, общая площадь 269м², участок 7 соток

    B продаже кирпичный коттедж площадью 400 м2 (жилой - 269 м2), расположенный в идеальном местe для загoродной жизни В 5 минутах от Каштака и 10 минутах oт Иpкутcкого тракта, в пoс.Kузoвлeво.Дом строился не для продажи.Планировка включает 6 изолированных...
    • 2 эт.
    • 269 м²
    • 7 сот.
    13 490 000 Р
    Агент
    +7 (913) Показать номер
    Посмотреть контакты
    Дом в Томская область, Томск Заливная ул. (149 м) - Фото 1
    Дом в Томская область, Томск Заливная ул. (149 м) - Фото 2
    2 этажа, общая площадь 149м², участок 5 соток

    Пpодaeтcя дoм и земельный участок. По выгoднoй цене (кaк инвecтициoннo, тaк и для cебя)Построeнный в 2005 гoду, этoт дом привлекaeт свoим бeзупpечным качествoм и уютной планиpовкoй, выполнен с учетом закoнов Вacту.Он стaл нacтоящим дoмoм мечты, кoтoрый...
    • 2 эт.
    • 149 м²
    • 5 сот.
    12 800 000 Р
    Агент
    +7 (983) Показать номер
    Посмотреть контакты
    Коттедж в Томская область, Томск ул. Сенная Курья (92 м) - Фото 1
    Коттедж в Томская область, Томск ул. Сенная Курья (92 м) - Фото 2
    2 этажа, общая площадь 91м², участок 9 соток

    Продается шикарный современный дом без вложений Идеально подходит как для круглогодичного проживания семьи, так и для бизнеса В данный момент дом сдается посуточно с декабря и активно пользуется спросом, принося доход от 300 тыс. в месяц Характеристики...
    • 2 эт.
    • 91 м²
    • 9 сот.
    12 000 000 Р
    Агент
    +7 (913) Показать номер
    Посмотреть контакты
    Дом в Томская область, Томск Черемошники мкр, ул. 1-я Усть-Киргизка, 2 ... - Фото 1
    Дом в Томская область, Томск Черемошники мкр, ул. 1-я Усть-Киргизка, 2 ... - Фото 2
    2 этажа, общая площадь 83м², участок 7 соток

    Код объекта: 1880256. Предлагается к приобретению комфортабельный двухэтажный коттедж, расположенный на просторном участке в 7 соток по адресу: 1-я Усть-Киргизка. Преимуществом является его расположение на центральной улице.Недвижимость включает в себя...
    • 2 эт.
    • 83 м²
    • 7 сот.
    12 750 000 Р
    Агент
    +7 (913) Показать номер
    Посмотреть контакты

    Не нашли подходящего объявления?

    Оставьте заявку, и наши риэлторы подберут купить дом в районе Томска

    (0)