9 326 200 Р 114 800 $ или 99 390

Информация о квартире

54 м2
Площадь
2
Комнаты
4
Этаж
9
Этажность

Дополнительная информация

Тип дома
кирпичный
Развернуть
Агент
+7 (800) 333-03-93
Начать чат с агентом

2-к кв. Томская область, Томск ул. Вершинина, 58к2 (54.86 м)

Продаётся 2-комнатная квартира в строящемся доме (Корпус Б), срок сдачи: III-кв. 2027, общей площадью 54.86 кв.м., на 4 этаже. ЖК Лето-парк - два корпуса: 9 и 16 этажей на 409 квартир. Современные планировки, панорамное остекление с видами на город, лесной массив и реку Томь. Закрытый двор без машин, подземный паркинг, места для хранения мото- и вело-техники, индивидуальные кладовые. Рядом торговые центры, Лагерный сад, университеты, детские сады, школы, поликлиника. А главное, удобная транспортная развязка

Читать полностью
    Позвонить Написать
    9 326 200 Р114 800 $ или 99 390
    Агент
    +7 (800) 333-03-93
    Начать чат с агентом
    Похожие предложения
    2-к кв. Томская область, Томск ул. Вершинина, 58к2 (54.86 м) - Фото 1
    2-комнатная квартира, общая площадь 54м²

    Продаётся 2-комнатная квартира в строящемся доме (Корпус Б), срок сдачи: III-кв. 2027, общей площадью 54.86 кв.м., на 5 этаже. ЖК Лето-парк - два корпуса: 9 и 16 этажей на 409 квартир. Современные планировки, панорамное остекление с видами на город,...
    • 54 м²
    • 2-ком
    • 5/9 эт.
    • кирпичный
    9 326 200 Р
    Агент
    +7 (800) Показать номер
    Посмотреть контакты
    1-к кв. Томская область, Томск Красноармейская ул., 144 (40.84 м) - Фото 1
    1-к кв. Томская область, Томск Красноармейская ул., 144 (40.84 м) - Фото 2
    1-комнатная квартира, общая площадь 40м², жилая 14м²

    В архитектурном доме Ломоносов в продаже квартира N 339 площадью 40.84 кв.м. Внешние и внутренние стены из кирпича, высокие потолки, панорамные окна и утепленная лоджия. Квартира сдается в отделке white box. Строгие линии и четкие формы вместе с переменной...
    • 40 м²
    • 1-ком
    • 8/10 эт.
    9 221 672 Р
    Агент
    +7 (980) Показать номер
    Посмотреть контакты
    1-к кв. Томская область, Томск Красноармейская ул., 144 (46.61 м) - Фото 1
    1-к кв. Томская область, Томск Красноармейская ул., 144 (46.61 м) - Фото 2
    1-комнатная квартира, общая площадь 46м², жилая 15м²

    В архитектурном доме Ломоносов в продаже квартира N 24 площадью 46.61 кв.м. Внешние и внутренние стены из кирпича, высокие потолки, панорамные окна и утепленная лоджия. Квартира сдается в отделке white box. Строгие линии и четкие формы вместе с переменной...
    • 46 м²
    • 1-ком
    • 5/10 эт.
    9 266 068 Р
    Агент
    +7 (980) Показать номер
    Посмотреть контакты
    1-к кв. Томская область, Томск Красноармейская ул., 144 (46.61 м) - Фото 1
    1-к кв. Томская область, Томск Красноармейская ул., 144 (46.61 м) - Фото 2
    1-комнатная квартира, общая площадь 46м², жилая 15м²

    В архитектурном доме Ломоносов в продаже квартира N 30 площадью 46.61 кв.м. Внешние и внутренние стены из кирпича, высокие потолки, панорамные окна и утепленная лоджия. Квартира сдается в отделке white box. Строгие линии и четкие формы вместе с переменной...
    • 46 м²
    • 1-ком
    • 6/10 эт.
    9 359 288 Р
    Агент
    +7 (980) Показать номер
    Посмотреть контакты
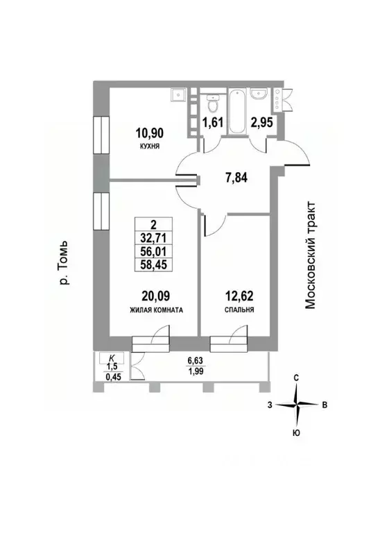
    2-к кв. Томская область, Томск тракт Московский, 109Бк3 (58.45 м) - Фото 1
    2-комнатная квартира, общая площадь 58м²

    Продаётся 2-комнатная квартира в строящемся доме (2 этап), срок сдачи: IV-кв. 2025, общей площадью 58.45 кв.м., на 5 этаже. Новый многофункциональный жилой комплекс Московский от Специализированного застройщика ЖК Московский , ООО расположен в г. Томск...
    • 58 м²
    • 2-ком
    • 5/22 эт.
    9 352 000 Р
    Агент
    +7 (932) Показать номер
    Посмотреть контакты

    Не нашли подходящего объявления?

    Оставьте заявку, и наши риэлторы подберут квартиру в новостройке в районе Томска

    (0)