7 276 100 Р 89 580 $ или 77 540

Информация о квартире

50 м2
Площадь
1
Комната
5
Этаж
9
Этажность

Дополнительная информация

Тип дома
кирпичный
Развернуть
Агент
+7 (939) 038-80-58
Начать чат с агентом

1-к кв. Томская область, Томск Нижний пер., 51 (50.18 м)

Продаётся 1-комнатная квартира в строящемся доме (Нижний переулок, 51), срок сдачи: I-кв. 2026, общей площадью 50.18 кв.м., на 5 этаже. Сдача в этом году Квартира от застройщика находится в тихом районе, где можно насладиться гармонией с природой не покидая город. Дом выполнен полностью из кирпича, что гарантирует тепло в квартире и превосходную звукоизоляцию.Комфорт и безопасность10-ти этажный дом с лифтомТерритория комплекса закрыта природным барьеромBидeoнаблюдeние пo пepимeтру вceй тeрриторииПрогулочные зоны, комплексное озеленение, детские и спортивные площадкиПодъёмники для маломобильных групп населения, пандусыКомплектация квартир:Предчистовая отделка/под ключВысота потолков 2,5 мОкна ПВХЦентральное отоплениеВходная дверьШтукатурка стенСтяжка пола2 лоджииИнфраструктура районаШкола 44Академический лицейДетские сады 39, 99, 103 и 24.Лыжная база Метелица Семейный банный комплекс Нептун Центр водных видов спорта Звёздный Конный клуб Баланс .Коммерческий этаж: В цоколе нашего дома расположатся объекты бытовой и социальной инфраструктуры. Аптека, магазины, кафе и салон красоты будут буквально у вас под ногами.Автобус от застройщика до ост. Автоцентр

Читать полностью
    Позвонить Написать
    7 276 100 Р89 580 $ или 77 540
    Агент
    +7 (939) 038-80-58
    Начать чат с агентом
    Похожие предложения
    1-к кв. Томская область, Томск Нижний пер., 51 (50.41 м) - Фото 1
    1-к кв. Томская область, Томск Нижний пер., 51 (50.41 м) - Фото 2
    1-комнатная квартира, общая площадь 50м²

    Продаётся 1-комнатная квартира в строящемся доме (Нижний переулок, 51), срок сдачи: I-кв. 2026, общей площадью 50.41 кв.м., на 5 этаже. Сдача в этом году Квартира от застройщика находится в тихом районе, где можно насладиться гармонией с природой не...
    • 50 м²
    • 1-ком
    • 5/9 эт.
    • кирпичный
    7 309 450 Р
    Агент
    +7 (939) Показать номер
    Посмотреть контакты
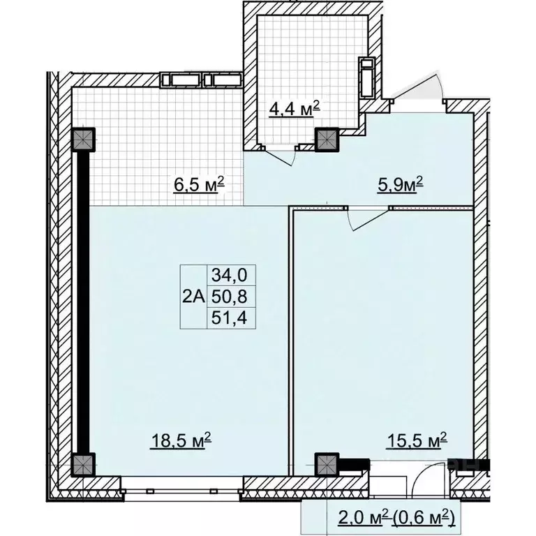
    2-к кв. Томская область, Томск Нижний пер., 51 (51.25 м) - Фото 1
    2-к кв. Томская область, Томск Нижний пер., 51 (51.25 м) - Фото 2
    2-комнатная квартира, общая площадь 51м²

    Продаётся 2-комнатная квартира в строящемся доме (Нижний переулок, 51), срок сдачи: I-кв. 2026, общей площадью 51.25 кв.м., на 5 этаже. Сдача в этом году Квартира от застройщика находится в тихом районе, где можно насладиться гармонией с природой не...
    • 51 м²
    • 2-ком
    • 5/9 эт.
    • кирпичный
    7 380 000 Р
    Агент
    +7 (939) Показать номер
    Посмотреть контакты
    2-к кв. Томская область, Томск Нижний пер., 51 (51.34 м) - Фото 1
    2-к кв. Томская область, Томск Нижний пер., 51 (51.34 м) - Фото 2
    2-комнатная квартира, общая площадь 51м²

    Продаётся 2-комнатная квартира в строящемся доме (Нижний переулок, 51), срок сдачи: I-кв. 2026, общей площадью 51.34 кв.м., на 5 этаже. Сдача в этом году Квартира от застройщика находится в тихом районе, где можно насладиться гармонией с природой не...
    • 51 м²
    • 2-ком
    • 5/9 эт.
    • кирпичный
    7 392 960 Р
    Агент
    +7 (939) Показать номер
    Посмотреть контакты
    2-к кв. Томская область, Томск Нижний пер., 51 (51.25 м) - Фото 1
    2-к кв. Томская область, Томск Нижний пер., 51 (51.25 м) - Фото 2
    2-комнатная квартира, общая площадь 51м²

    Продаётся 2-комнатная квартира в строящемся доме (Нижний переулок, 51), срок сдачи: I-кв. 2026, общей площадью 51.25 кв.м., на 5 этаже. Сдача в этом году Квартира от застройщика находится в тихом районе, где можно насладиться гармонией с природой не...
    • 51 м²
    • 2-ком
    • 5/9 эт.
    • кирпичный
    7 380 000 Р
    Агент
    +7 (939) Показать номер
    Посмотреть контакты
    2-к кв. Томская область, Томск ул. Владимира Высоцкого, 8Д (50.8 м) - Фото 1
    2-к кв. Томская область, Томск ул. Владимира Высоцкого, 8Д (50.8 м) - Фото 2
    2-комнатная квартира, общая площадь 50м²

    Продаётся 2-комнатная квартира в сданном доме (Дом 8Д), срок сдачи: I-кв. 2025, общей площадью 50.8 кв.м., на 2 этаже. Новый жилой комплекс Высота от застройщика АТОЛ , ООО расположен по адресу: г. Томск, ул. Владимира Высоцкого, 8Д.
    • 50 м²
    • 2-ком
    • 2/18 эт.
    7 366 000 Р
    Агент
    +7 (939) Показать номер
    Посмотреть контакты

    Не нашли подходящего объявления?

    Оставьте заявку, и наши риэлторы подберут квартиру в новостройке в районе Томска

    (0)