5 350 000 Р 66 140 $ или 57 290

Информация о квартире

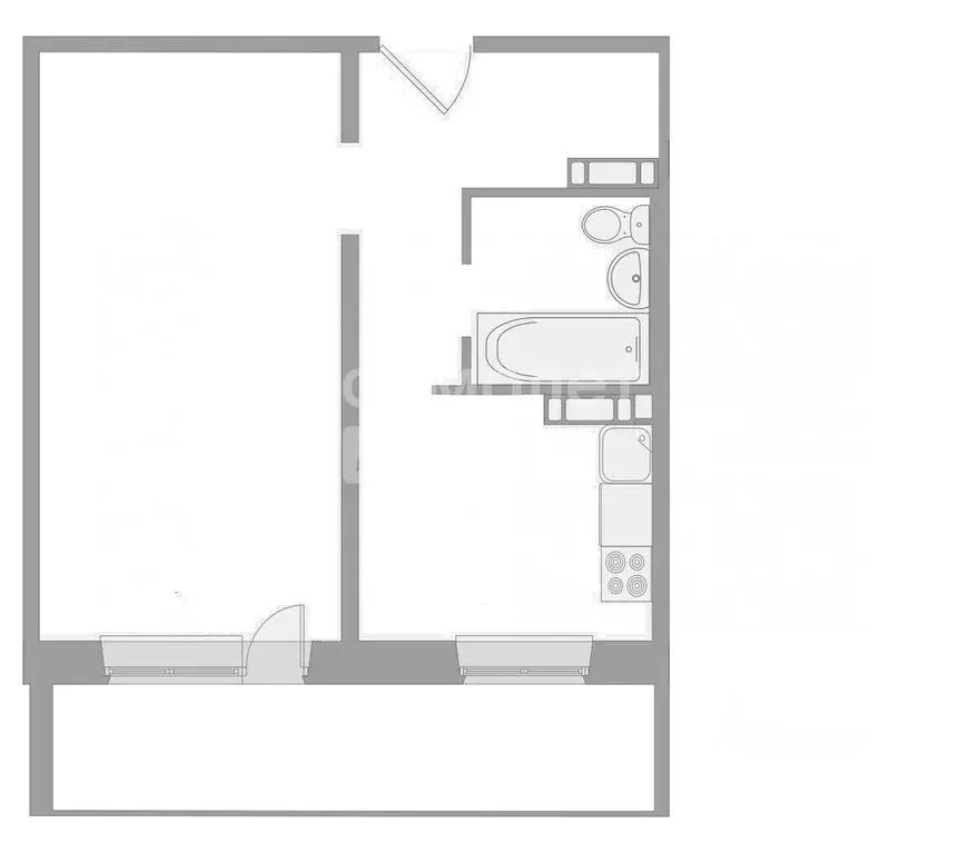
60 м2
Площадь
46 м2
Жилая
8 м2
Кухня
3
Комнаты
3
Этаж
5
Этажность

Дополнительная информация

Тип дома
кирпичный
Развернуть
Агент
+7 (913) 851-93-87
Начать чат с агентом

3-к кв. Томская область, Томск ул. Беринга, 16 (60.4 м)

Просторная 3-комнатная квартира в кирпичном доме. Идеальный вариант для большой семьи, где у каждого будет свое личное пространство Ключевые преимущества:- 3 отдельные комнаты. После перепланировки из 4-комнатной увеличилась площадь каждой, что сделало их более удобными.- На полу везде бетонная стяжка- Кухня также стала больше на 2 м?, что очень важно для семьи. Теперь ее площадь составляет 8 м?.- Перепланировка узаконена: все изменения официально оформлены (документы на фото).- Качественный ремонт: ламинат, натяжные потолки, пластиковые окна, санузел с кафелем.- Тишина и комфорт: окна на две стороны, дом расположен вдали от шумных дорог.- Квартира теплая, светлая- Новым собственникам остаётся мебель и техника : кухонный гарнитур, плита, вытяжка, стиральная машина, шкаф в ванной , 2 дивана, шкаф в гостиной. Остальная мебель по договорённости.- Удобная локация: рядом остановки общественного транспорта, школа и детский сад, супермаркеты, аптеки, места для отдыха и спорта.-Любая форма оплаты. Объект прошел юридическую проверку.Звоните прямо сейчас Покажем квартиру в удобное для вас время. Видеообзор квартиры посмотрите по ссылке.Комплексная услуга для покупателя с полной финансовой ответственностью агентстваПри звонке, пожалуйста, сообщите номер варианта - JV

Читать полностью

    Для того, чтобы купить трехкомнатную квартиру по адресу: Томск, Октябрьский, ул. Беринга, 16, позвоните по телефону +7 (913) 851-93-87. Торопитесь! Объявление №30081677449 о продаже трехкомнатной квартиры опубликовано 24 октября 2025.

    Позвонить Написать
    5 350 000 Р66 140 $ или 57 290
    Агент
    +7 (913) 851-93-87
    Начать чат с агентом
    Похожие предложения
    4-к кв. Томская область, Томск пос. Светлый, 7 (70.4 м) - Фото 1
    4-к кв. Томская область, Томск пос. Светлый, 7 (70.4 м) - Фото 2
    4-комнатная квартира, общая площадь 70м², жилая 47м², кухня 7м²

    Продается 4-х комнатная квартира в доме 75 серии с ремонтом. Мебель и техника частично остаётся новым владельцам. Очень просторная для большой семьи,у каждого будет свое личное пространство. Отличная планировка на 3 стороны света. В квартире всегда светло....
    • 70 м²
    • 4-ком
    • 9/9 эт.
    • панельный
    5 500 000 Р
    Агент
    +7 (913) Показать номер
    Посмотреть контакты
    1-к кв. Томская область, Томск ул. Архитектора Василия Болдырева, 5 ... - Фото 1
    1-к кв. Томская область, Томск ул. Архитектора Василия Болдырева, 5 ... - Фото 2
    1-комнатная квартира, общая площадь 34м², жилая 18м², кухня 7м²

    Видовая однокомнатная квартира в Зеленых горках О доме:Год постройки - 2018Материал - панельТСЖ, которое отрабатывает все запросы жителейКамеры видеонаблюдения по всему периметру и в подъездах - доступ естьО квартире:Этаж - 16/17Площадь - 37,7 м2 + 7м2...
    • 34 м²
    • 1-ком
    • 16/17 эт.
    • панельный
    5 300 000 Р
    Агент
    +7 (913) Показать номер
    Посмотреть контакты
    3-к кв. Томская область, Томск ул. Пушкина, 27Е (55.4 м) - Фото 1
    3-к кв. Томская область, Томск ул. Пушкина, 27Е (55.4 м) - Фото 2
    3-комнатная квартира, общая площадь 55м², жилая 40м², кухня 6м²

    Продается 3-комнатная квартира в районе телецентра, расположенная на третьем этаже пятиэтажного кирпичного дома. Квартира не угловая, а высота потолков составляет 2.6 м. В квартире установлены стеклопакеты, что обеспечивает хорошую шумо- и теплоизоляцию....
    • 55 м²
    • 3-ком
    • 3/5 эт.
    • кирпичный
    5 300 000 Р
    Агент
    +7 (913) Показать номер
    Посмотреть контакты
    3-к кв. Томская область, Томск ул. Сергея Лазо, 24/2 (59.3 м) - Фото 1
    3-к кв. Томская область, Томск ул. Сергея Лазо, 24/2 (59.3 м) - Фото 2
    3-комнатная квартира, общая площадь 59м², кухня 8м²

    В продаже трехкомнатная квартира, на пятом этаже пятиэтажного дома, дом 1974 года, достаточно свежий в своей серии, двор чистый, имеется своя детская площадка, подъезд в хорошем состоянии, с крышей проблем нет.Квартира с косметическим ремонтом, заехать...
    • 59 м²
    • 3-ком
    • 5/5 эт.
    • панельный
    5 300 000 Р
    Агент
    +7 (913) Показать номер
    Посмотреть контакты
    3-к кв. Томская область, Томск ул. Бела Куна, 18 (56.6 м) - Фото 1
    3-к кв. Томская область, Томск ул. Бела Куна, 18 (56.6 м) - Фото 2
    3-комнатная квартира, общая площадь 56м², жилая 30м², кухня 7м²

    Продается просторная 3-комнатная квартира в кирпичном доме улучшенной планировки (не хрущевка ) 1980 года постройки Идеальный вариант для семьи, ценящей комфорт и тишину.Квартира отличается удобной планировкой: все комнаты квадратной формы, широкий коридор,...
    • 56 м²
    • 3-ком
    • 5/5 эт.
    • кирпичный
    5 500 000 Р
    Агент
    +7 (913) Показать номер
    Посмотреть контакты

    Не нашли подходящего объявления?

    Оставьте заявку, и наши риэлторы подберут квартиру в районе Томска

    (0)