Россия, Томская область, Томск, 2-я Лесная улица, 75/2
2 700 000 Р 33 330 $ или 28 750

Информация о квартире

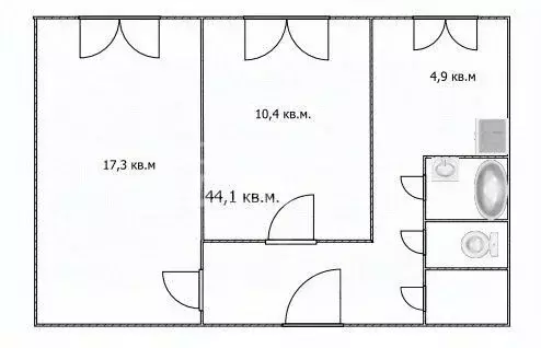
44 м2
Площадь
27 м2
Жилая
4 м2
Кухня
2
Комнаты
2
Этаж
2
Этажность

Дополнительная информация

Тип дома
кирпичный
Развернуть
Агент
+7 (913) 810-77-29
Начать чат с агентом

2-к кв. Томская область, Томск пос. Сосновый Бор, ул. 2-я Лесная, 75/2 ...

Уютная двухкомнатная квартира площадью 44.1 квадратных метра на втором этаже двухэтажного панельного дома. Дом построен в 1990 году и имеет тихое место, что создаёт приятную атмосферу уединения от городской суеты. Квартира порадует вас своим состоянием - современный ремонт, который придаст вашему новому жилью аккуратный и ухоженный вид. Два комфортабельных помещения предоставляют прекрасную возможность организовать пространство под свои нужды и вкусы, а раздельный санузел добавляет дополнительное удобство для семейного использования. Так же имеется гардеробная - удобное и практичное решение. Вместительная, оборудована полками и штангами; позволяет хранить сезонную одежду и обувь, а так же аксессуары без лишнего захламления комнат. Комфортная планировка, светлые комнаты, вид на зеленую зону. Из окон вашего будущего жилья открывается приятный вид на спокойный двор, где можно наслаждаться тишиной после насыщенного дня. Этот вариант идеально подойдёт тем, кто ценит комфорт, спокойствие и уют своего жилища. Тишина, чистый воздух, идеально для тех, кто любит лес и природу. Отличное соотношение цена/состояние, второй этаж - удобно и тепло, уютная планировка, светлые комнаты.Приглашаем на просмотр квартиры, которая может стать вашим новым домом и местом для счастливых моментов Записывайтесь на просмотр и убедитесь сами в достоинствах этой замечательной квартиры Арт.

Читать полностью

    Для того, чтобы купить двухкомнатную квартиру по адресу: Томск, 2-я Лесная улица, 75/2, позвоните по телефону +7 (913) 810-77-29. Торопитесь! Объявление №30091027646 о продаже двухкомнатной квартиры опубликовано 2 дня назад.

    Позвонить Написать
    2 700 000 Р33 330 $ или 28 750
    Агент
    +7 (913) 810-77-29
    Начать чат с агентом
    Похожие предложения
    1-к кв. Томская область, Томск ул. Шевченко, 48 (18.0 м) - Фото 1
    1-к кв. Томская область, Томск ул. Шевченко, 48 (18.0 м) - Фото 2
    1-комнатная квартира, общая площадь 18м², жилая 11м², кухня 2м²

    Эта квартира - идеальный вариант для тех, кто ценит комфорт и качество жилья. Современный ремонт, стильная мебель и удобная планировка делают эту квартиру привлекательной как для молодых семей, так и для студентов или пожилых родственников.Площадь квартиры...
    • 18 м²
    • 1-ком
    • 1/3 эт.
    • кирпичный
    2 600 000 Р
    Агент
    +7 (983) Показать номер
    Посмотреть контакты
    2-к кв. Томская область, Томск ул. Бакунина, 15А (41.8 м) - Фото 1
    2-к кв. Томская область, Томск ул. Бакунина, 15А (41.8 м) - Фото 2
    2-комнатная квартира, общая площадь 41м², жилая 29м², кухня 7м²

    Арт.Квартира в атмосферном районе с богатой историей и приятной прогулочной зонойПродается 2-комнатная квартира в историческом центре Томска, площадью 41,8 кв.м., расположенная на 2 этаже 2-этажного деревянного дома. Собственный отдельный вход обеспечит...
    • 41 м²
    • 2-ком
    • 2/2 эт.
    • деревянный
    2 700 000 Р
    Агент
    +7 (913) Показать номер
    Посмотреть контакты
    1-к кв. Томская область, Томск ул. Кулагина, 27 (16.0 м) - Фото 1
    1-к кв. Томская область, Томск ул. Кулагина, 27 (16.0 м) - Фото 2
    1-комнатная квартира, общая площадь 16м², жилая 8м², кухня 3м²

    Продаётся уютная однокомнатная гостинка вторичка на 1 этаже 5-этажного дома площадью 16.00 кв.м. Это очень экономичный вариант для жилья. В квартире сделан стандартный ремонт. Это отличное предложение для студентов и молодых специалистов. Рядом с домом...
    • 16 м²
    • 1-ком
    • 1/5 эт.
    • панельный
    2 700 000 Р
    Агент
    +7 (913) Показать номер
    Посмотреть контакты
    1-к кв. Томская область, Томск Транспортная ул., 4 (18.2 м) - Фото 1
    1-к кв. Томская область, Томск Транспортная ул., 4 (18.2 м) - Фото 2
    1-комнатная квартира, общая площадь 18м², жилая 8м², кухня 5м²

    В квартире выполнен свежий косметический ремонт. Напольное покрытие линолеум, на окнах пластиковые стеклопакеты, матовые натяжные потолки. Квартира очень теплая и солнечная .Чистый подъезд, хорошие семейные соседи. Удачное расположение дома, в 2х-минутах...
    • 18 м²
    • 1-ком
    • 5/5 эт.
    • кирпичный
    2 600 000 Р
    Агент
    +7 (913) Показать номер
    Посмотреть контакты
    Квартира-студия: Томск, Паровозный переулок, 13 (19.1 м) - Фото 1
    Квартира-студия: Томск, Паровозный переулок, 13 (19.1 м) - Фото 2
    студия, общая площадь 19м², жилая 10м²

    Студия на первом этаже с ремонтом в тихом и тёплом домеПродаётся уютная однокомнатная квартира-студия с выполненным косметическим ремонтом. Идеальное сочетание комфорта и практичности Ключевые преимущества:· Тишина и покой: Окна выходят во двор, поэтому...
    • 19 м²
    • студия-ком
    • 1/3 эт.
    2 700 000 Р
    Агент
    +7 (913) Показать номер
    Посмотреть контакты

    Не нашли подходящего объявления?

    Оставьте заявку, и наши риэлторы подберут квартиру в районе Томска

    (0)