Реализация объекта недвижимости приостановлена

Информация о квартире

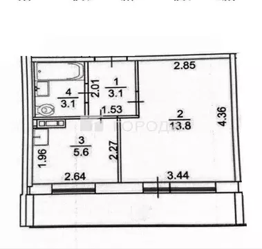
41.0 м2
Площадь
30.0 м2
Жилая
6.0 м2
Кухня
3
Комнаты
5
Этаж
6
Этажность

Дополнительная информация

Тип дома
кирпичный
Развернуть

3-к кв. Томская область, Томск Переездный пер., 2 (41.1 м)

Продаётся 3-комнатная квартира с удобной планировкой.Зал проходной — отличный вариант для семьи: можно сделать общую зону для отдыха и при этом сохранить отдельные комнаты для всех.Квартира светлая, чистая, ухоженная. Состояние жилое — можно заехать и жить, постепенно обустраивая под себя.Дом расположен в удобном районе:в шаговой доступности школы и детские сады, рядом баня, магазины и всё необходимое для повседневной жизни. Район спокойный, подходит для семей с детьми.Хороший вариант для тех, кто ищет доступную трёхкомнатную квартиру в развитом районе.Если нужны дополнительные фото или вопросы по квартире — пишите, с удовольствием отвечу.

Читать полностью

    Реализация объекта недвижимости приостановлена

    Не нашли подходящего объявления?

    Оставьте заявку, и наши риэлторы подберут квартиру в районе Томска

    (0)