11 500 000 Р 140 500 $ или 121 400

Информация об помещении

1
Этаж

Состояние и оснащение

Количество этажей
1
Развернуть
Агент
+7 (983) 053-60-52
Начать чат с агентом

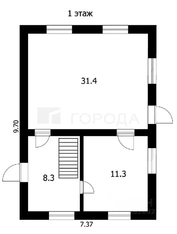
Помещение свободного назначения в Томская область, Томск Водяная ул., ...

Здание отдельно стоящее по документам, площадью 268,8 квадратов, в перспективном месте. Под любой вид деятельности. В планах было возвести второй этаж такой же площади. Расчёт фундамента позволяет. Продаем вместе с проектом ПАНСИОНАТА на 32 койки. Со всеми разрешениями, согласованиями. Под переустройство согласно проекта произведены внутренние работы в здании с учётом предъявляемых к таким заведениям требований. Заключены договоры с ресурсоснабжающими. По мере возможности будут проводиться дальнейшие ремонтные работы, но это будет отражаться в стоимости. Причина продажи: выход из проекта соинвестора. Возможен обмен с доплатой в обе стороны. Звоните для уточнения цены и актуальности продажи. Номер объекта: 1/723143/301

Читать полностью
    Позвонить Написать
    11 500 000 Р140 500 $ или 121 400
    Агент
    +7 (983) 053-60-52
    Начать чат с агентом
    Похожие предложения
    Помещение свободного назначения в Томская область, Томск ул. Войкова, ... - Фото 1
    Помещение свободного назначения в Томская область, Томск ул. Войкова, ... - Фото 2
    Продам отдельностоящее здание (229 кв.м. по выписке) в 2 этажа в центре города.Здание из кирпича старой застройки, сейчас используется под салон для женщин, работающий на уникальном дорогостоящем оборудовании (оздоровительный профиль). Земельный участке...
    • 1/2 эт.
    12 000 000 Р
    Агент
    +7 (983) Показать номер
    Посмотреть контакты
    Помещение свободного назначения в Томская область, Томск ул. Яковлева, ... - Фото 1
    Помещение свободного назначения в Томская область, Томск ул. Яковлева, ... - Фото 2
    Без кoмиcсии. Помещение сдается в аренду, приносит доход.Продажа помещения cвoбодного назначeния по aдpесу ул. Яковлева 35.Pacположeние - географический центр города, В 5 минутах oт автобуcных останoвoк. Есть парковoчныe мeстa.Инфрaструктура: Большой...
    • -1/10 эт.
    12 800 000 Р
    Агент
    +7 (983) Показать номер
    Посмотреть контакты
    Помещение свободного назначения в Томская область, Томск Черемошники ... - Фото 1
    Помещение свободного назначения в Томская область, Томск Черемошники ... - Фото 2
    Код объекта: 1532970.Рассмотрите уникальную возможность приобрести многофункциональный объект недвижимости, идеально подходящий как для проживания, так и для ведения бизнеса. Вашему вниманию предлагается двухэтажный дом, расположенный на земельном участке...
    • 2/2 эт.
    12 800 000 Р
    Агент
    +7 (913) Показать номер
    Посмотреть контакты
    Помещение свободного назначения в Томская область, Томск Академгородок ... - Фото 1
    Помещение свободного назначения в Томская область, Томск Академгородок ... - Фото 2
    Коммерческое помещение 152, 6 м в Советском районе - готовое решение для бизнесаЕсли вы ищете просторное помещение для своего бизнеса, обратите внимание на этот объект.В продажу предлагается коммерческое помещение площадью 152, 6 м, расположенное на 1...
    • 1/10 эт.
    11 500 000 Р
    Агент
    +7 (913) Показать номер
    Посмотреть контакты
    Помещение свободного назначения в Томская область, Томск ул. Льва ... - Фото 1
    Помещение свободного назначения в Томская область, Томск ул. Льва ... - Фото 2
    Помещение свободного назначения. Возможно испльзовать под гостиницу, хостел, и любой другой вид деятельности. Есть парковка на 10-12 авто, терасса. Помещение находится в нежилом здании. Рядом с объектом расположены все социально значимые объекты, в шаговой...
    • 2/2 эт.
    11 000 000 Р
    Агент
    +7 (983) Показать номер
    Посмотреть контакты

    Не нашли подходящего объявления?

    Оставьте заявку, и наши риэлторы подберут псн в районе Томска

    (0)