Россия, Томская область, Томск, 1-я улица Усть-Киргизка, 2
12 800 000 Р 157 800 $ или 134 600

Информация об помещении

2
Этаж

Состояние и оснащение

Количество этажей
2
Развернуть
Агент
+7 (960) 948-75-50
Начать чат с агентом

Помещение свободного назначения (83.2 м)

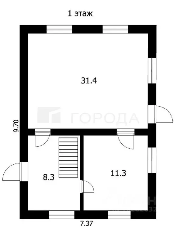
Код объекта: 1532970. Рассмотрите уникальную возможность приобрести многофункциональный объект недвижимости, идеально подходящий как для проживания, так и для ведения бизнеса. Вашему вниманию предлагается двухэтажный дом, расположенный на земельном участке в 7 соток, по адресу: 1-я Усть-Киргизка, с выгодным местоположением на главной улице.В состав недвижимости входят: двухэтажное здание, торговый павильон общей площадью 83,2 квадратных метра + 28 квадратных метров, кирпичный гараж на две машины площадью 46,1 квадратных метра, а также баня. К объекту подведены все необходимые центральные коммуникации: водопровод, электричество, автономное отопление (угольный и электрический котлы) и канализация; есть возможность подключения к газовой магистрали.Объект находится в частной собственности, юридически чист, без каких-либо обременений, все документы оформлены надлежащим образом, иметься ГПЗУ 2025 года. Мы открыты к обсуждению варианта обмена на квартиру с вашей доплатой. Не упустите свой шанс Звоните в рабочее время с 09:00 до 19:00, чтобы договориться о просмотре объекта. Наши специалисты с удовольствием ответят на все ваши вопросы

Читать полностью
    Позвонить Написать
    12 800 000 Р157 800 $ или 134 600
    Агент
    +7 (960) 948-75-50
    Начать чат с агентом
    Похожие предложения
    Помещение свободного назначения в Томская область, Томск Черемошники ... - Фото 1
    Помещение свободного назначения в Томская область, Томск Черемошники ... - Фото 2
    Код объекта: 1532970.Рассмотрите уникальную возможность приобрести многофункциональный объект недвижимости, идеально подходящий как для проживания, так и для ведения бизнеса. Вашему вниманию предлагается двухэтажный дом, расположенный на земельном участке...
    • 2/2 эт.
    12 800 000 Р
    Агент
    +7 (913) Показать номер
    Посмотреть контакты
    Помещение свободного назначения в Томская область, Томск Киевская ул., ... - Фото 1
    Помещение свободного назначения в Томская область, Томск Киевская ул., ... - Фото 2
    Арт.Выгодное нежилое помещение 130 м в новом доме с высоким трафиком Инвестируйте в перспективное нежилое помещение в оживленном районе Расположенное в новом 19-этажном доме (более 500 квартир), это помещение площадью 130 м с высокими потолками (3.5+...
    • -1/19 эт.
    12 000 000 Р
    Агент
    +7 (913) Показать номер
    Посмотреть контакты
    Помещение свободного назначения в Томская область, Томск ул. Войкова, ... - Фото 1
    Помещение свободного назначения в Томская область, Томск ул. Войкова, ... - Фото 2
    Продам отдельностоящее здание (229 кв.м. по выписке) в 2 этажа в центре города.Здание из кирпича старой застройки, сейчас используется под салон для женщин, работающий на уникальном дорогостоящем оборудовании (оздоровительный профиль). Земельный участке...
    • 1/2 эт.
    12 000 000 Р
    Агент
    +7 (983) Показать номер
    Посмотреть контакты
    Помещение свободного назначения в Томская область, Томск ... - Фото 1
    Помещение свободного назначения в Томская область, Томск ... - Фото 2
    Продаётся офис в центре города. Готовый арендный бизнес или помещение для вашего бизнеса Характеристики помещения:• Цоколь с окнами.• Отдельный вход.• Кабинетная система.• Высота потолка 2,25 м.• Электроэнергия 8 кВт.• Все коммуникации центральные.•...
    • 1/6 эт.
    12 900 000 Р
    Агент
    +7 (983) Показать номер
    Посмотреть контакты
    Помещение свободного назначения в Томская область, Томск ул. 2-я ... - Фото 1
    Помещение свободного назначения в Томская область, Томск ул. 2-я ... - Фото 2
    Вашему вниманию представлено двухэтажное здание на первой линии. Здание расположено в промышленном секторе на улице с высоким автомобильным/грузовым трафиком. Строение полностью кирпичное + утеплитель, высота потолка первого этажа 3,5 м., второго 3,15...
    • 1/2 эт.
    13 500 000 Р
    Агент
    +7 (983) Показать номер
    Посмотреть контакты

    Не нашли подходящего объявления?

    Оставьте заявку, и наши риэлторы подберут псн в районе Томска

    (0)