Реализация объекта недвижимости приостановлена

Информация об помещении

1
Этаж

Состояние и оснащение

Количество этажей
16
Развернуть

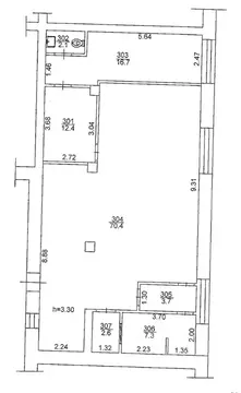
Помещение свободного назначения (173 м)

Преимущества локации:Высокий трафикРядом магазиныГустонаселенный район.Привлекательность объекта:1 линия, отдельный вход.Перед зданием есть парковка.Потенциал объекта:Прекрасно подойдет под формат: Службы доставки еды, и другие виды деятельностиВозможно, сдавать в аренду как помещение свободного назначенияОписание объекта:Центральное отоплениеЦентральная канализацияЦентральная водаКоммерческая недвижимость, коммерческое помещение

Читать полностью

    Реализация объекта недвижимости приостановлена

    Не нашли подходящего объявления?

    Оставьте заявку, и наши риэлторы подберут псн в районе Томска

    (0)