150 000 Р 1 920 $ или 1 650

Информация об помещении

3
Этаж

Состояние и оснащение

Количество этажей
3
Развернуть
Агент
+7 (913) 810-77-92
Начать чат с агентом

Помещение свободного назначения в Томская область, Томск Черемошники ...

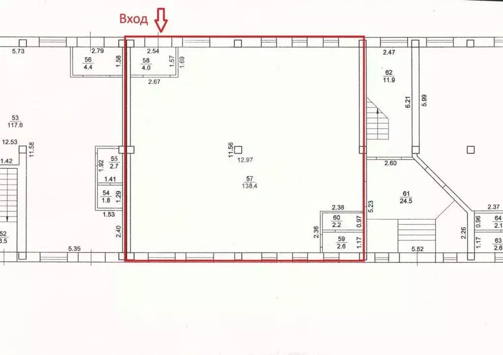
В долгосрочную аренду, сдается нежилое помещение свободной планировки по адресу ул. Пролетарская 38/1 Место расположение:- Центр города- Большая проходимость- Рядом остановки, кинотеатр, торговые центры.Площадь: 414 кв.м.Помещение идеально подойдёт под все виды деятельности офисы спортивные секции танцевальные школы производствоЗдесь Вы сможете разместить множество бизнес проектов При желании можно зонировать помещение, а также возможна сдача любой площади.Отличительные особенности объекта:Есть грузовой лифт до 2 тоннВысокие потолки;Множество окон, в помещении всегда светло; Заменена кровля;Центральное водоснабжение;Двойная канализация.2 мокрые точки/2 санузла Площадь занимает весь 3 этаж Удобное расположение Есть подъезд для групповых автомобилей Рассмотрим вариант отделки в счет арендной платы .А также возможна продажа помещения с действующим готовым бизнесом. Очень выгодное предложение, для вашего бизнеса звоните/пишите- с удовольствием ответим на все интересующие вопросы, обсудим все ваши предложения.

Читать полностью
    Позвонить Написать
    150 000 Р1 920 $ или 1 650
    Агент
    +7 (913) 810-77-92
    Начать чат с агентом
    Похожие предложения
    Помещение свободного назначения в Томская область, Томск ул. 2-я ... - Фото 1
    Помещение свободного назначения в Томская область, Томск ул. 2-я ... - Фото 2
    Вашему вниманию представлено двухэтажное здание на первой линии. Здание расположено в промышленном секторе на улице с высоким автомобильным/грузовым трафиком. Строение полностью кирпичное + утеплитель, высота потолка первого этажа 3,5 м., второго 3,15...
    • 1/2 эт.
    140 000 Р
    Агент
    +7 (983) Показать номер
    Посмотреть контакты
    Помещение свободного назначения в Томская область, Томск ул. ... - Фото 1
    Помещение свободного назначения в Томская область, Томск ул. ... - Фото 2
    От собственника Без комиссии Первый этаж Отдельный вход Центр города Большой трафик Большая парковочная зона Характеристики:- 2 линия- Отдельная входная группа- Общая парковка- Доступ 24/7- ХВС/ГВС- Свой санузел- Центральное отопление- Есть кондиционер-...
    • 1/4 эт.
    147 000 Р
    Агент
    +7 (913) Показать номер
    Посмотреть контакты
    Помещение свободного назначения в Томская область, Томск Сибирская ... - Фото 1
    Помещение свободного назначения в Томская область, Томск Сибирская ... - Фото 2
    Предлагаем в аренду помещение 200 м2 в густонаселенном районеВ соседнем помещении в декабре открывается ПВЗ ВйлдберизПлощадь можно разделить на 2 контура: 85 и 115 м2Арендная ставка зависит от площади:85 м2 по 1700 за м2, 115 м2 поуб/м2200 м2 поуб/м2...
    • 1/9 эт.
    144 500 Р
    Агент
    +7 (913) Показать номер
    Посмотреть контакты
    Помещение свободного назначения в Томская область, Томск ул. Усова, 37 ... - Фото 1
    Помещение свободного назначения в Томская область, Томск ул. Усова, 37 ... - Фото 2
    От собственника Без комиссии Отдельный вход. Высокие потолки. Большие окна. Вместительная парковка. Большой трафик.Характеристики:- 2 линия- Отдельная входная группа- Общая парковка- Доступ 24/7- ХВС/ГВС- Свой санузел- Центральное отопление- Хороший...
    • 1/5 эт.
    140 000 Р
    Агент
    +7 (913) Показать номер
    Посмотреть контакты
    Помещение свободного назначения в Томская область, Томск просп. ... - Фото 1
    Помещение свободного назначения в Томская область, Томск просп. ... - Фото 2
    Сдается в долгосрочную аренду помещение в центре города - пр.Фрунзе, 14а. Полностью 1 этаж, площадь 130 кв.м, ценауб/кв.м + ком услуги. Универсальное назначение, состояние хорошее, есть мокрая точка. Отдельный вход, сигнализация. Можно под магазин или...
    • 1/3 эт.
    140 000 Р
    Агент
    +7 (913) Показать номер
    Посмотреть контакты

    Не нашли подходящего объявления?

    Оставьте заявку, и наши риэлторы подберут псн в районе Томска

    (0)