 
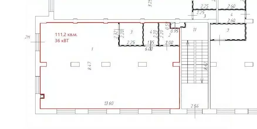
										От собственника Без комиссии Первая линия. Высокий трафик. Здание с панорамными окнами и открытой планировкой. Большая парковка. Динамичная локация с растущей инфраструктурой.Характеристики:- 1 линия (с ул. Бердской)- Общая входная группа- Общая парковка- Доступ 24/7- ХВС/ГВС- Свой санузел- Автономное отопление- Чистовой ремонт- Открытая планировка с возможностью перепланировки- Гибкие условия, арендные каникулы- Инфраструктура: торговые центры, бизнес-офисы и жилые комплексы, включая новостройки. - Коммунальные услуги оплачиваются отдельноПо всем вопросам можете обращаться к представителю собственника: Григорий Соломенников
 
								 
											
                                                                         
											
                                                                         
											
                                                                         
											
                                                                         
											
                                                                        Оставьте заявку, и наши риэлторы подберут псн в районе Томска
