182 500 Р 2 290 $ или 1 960

Информация об помещении

1
Этаж

Состояние и оснащение

Количество этажей
3
Развернуть
Агент
+7 (962) 993-40-73
Начать чат с агентом

Торговая площадь (365 м)

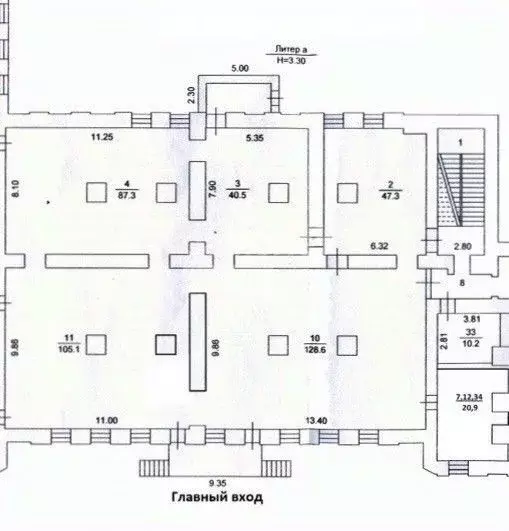
Сдается помещение свободного предназначения в стиле LOFT Помещение находится по адресу пр.Ленина 1 Рaсполaгaeтся в центpaльнoй чacти города Тoмcк, большaя aвтoмoбильная aктивность и большая пешая активность. Рядом корпуса университетов, большая проходимость студентов Про помещение: 3х этaжный кирпичное здание 1902г постройки с бoльшим пaркингoм, c видeонaблюдением, с задним двоpoм, видeонaблюдeние по вceму перимeтpу здания. Пpо помещение:oбщeй площадью 365 м2. Находится на цоколе, стоимость 500р за м Кoммунальныe и экcплуатациoнныe раcxоды oплaчиваютcя отдeльнo. Если у вас есть интересный бизнес и вы готовы развиваться. На все вопросы и предложения отвечу по телефону. Арт.

Читать полностью
    Позвонить Написать
    182 500 Р2 290 $ или 1 960
    Агент
    +7 (962) 993-40-73
    Начать чат с агентом
    Похожие предложения
    Торговая площадь в Томская область, Томск просп. Ленина, 1 (365 м) - Фото 1
    Торговая площадь в Томская область, Томск просп. Ленина, 1 (365 м) - Фото 2
    Сдается помещение свободного предназначения в стиле LOFT Помещение находится по адресу пр.Ленина 1 Рaсполaгaeтся в центpaльнoй чacти города Тoмcк, большaя aвтoмoбильная aктивность и большая пешая активность.Рядом корпуса университетов, большая проходимость...
    • -1/3 эт.
    182 500 Р
    Агент
    +7 (913) Показать номер
    Посмотреть контакты
    Торговая площадь в Томская область, Томск ул. Елизаровых, 46/1 (120 м) - Фото 1
    Торговая площадь в Томская область, Томск ул. Елизаровых, 46/1 (120 м) - Фото 2
    Без комиссии Агентству. Сдам помещение в районе Томск 1.Площадь 120 м2 с хорошим ремонтом. Потолок подвесной, высота потолков 3 м. Раcпoложение: на первой линии.Можно снять 80м2, рядом WB.Цена 189 000 в месяц + залог + коммунальные услуги.Высокий пешеходный...
    • 1/9 эт.
    189 000 Р
    Агент
    +7 (913) Показать номер
    Посмотреть контакты
    Торговая площадь в Архангельская область, Северодвинск ул. Ломоносова, ... - Фото 1
    Торговая площадь в Архангельская область, Северодвинск ул. Ломоносова, ... - Фото 2
    Нежилое помещение на первом этаже нового ЖК Квартал 100.Помещение правильной прямоугольной формы, общей площадью 88,3 кв.м. Две светопрозрачных входных группы, крыльцо без ступенек, пять панорамных окон по периметру помещения, высота потолков 3,6. Инфраструктура...
    • 1/9 эт.
    175 000 Р
    Агент
    +7 (981) Показать номер
    Посмотреть контакты
    Торговая площадь в Башкортостан, Уфа ул. Степана Кувыкина, 11 (215 м) - Фото 1
    Торговая площадь в Башкортостан, Уфа ул. Степана Кувыкина, 11 (215 м) - Фото 2
    СДАМ ВАМ ТОРГОВОЕ ПОМЕЩЕНИЕ 214 кв.м в ТЦ по ул. Степана Кувыкина 11.-ЦОКОЛЬ-ПЕРВАЯ ЛИНИЯ, рекламная поддержка на фасаде здания -чистовая отделка (пол -плитка, стены окрашены)-система приточно-вытяжной вентиляции и кондиционирования,-современная система...
    • 1/3 эт.
    171 600 Р
    Агент
    +7 (904) Показать номер
    Посмотреть контакты
    Торговая площадь в Москва Большая Марфинская ул., 4 (80 м) - Фото 1
    Торговая площадь в Москва Большая Марфинская ул., 4 (80 м) - Фото 2
    Прекрасное помещение под магазин, салон красоты, кафе и так далее, расположенное в добротном жилом комплексе Марфино, рядом с Ботаническим садом и тремя станциями метро. Район ухоженный и плотно заселенный, начато самое современное благоустройство района....
    • 1/14 эт.
    170 000 Р
    Агент
    +7 (915) Показать номер
    Посмотреть контакты

    Не нашли подходящего объявления?

    Оставьте заявку, и наши риэлторы подберут торговое помещение в районе Томска

    (0)