9 500 000 Р 117 400 $ или 101 300

Информация о коттедже

125 м2
Площадь
2
Этажность
8 cоток
Участок

Дополнительная информация

Дом продаётся вместе с участком
есть
Развернуть
Агент
+7 (913) 810-57-65
Начать чат с агентом

Дом в Томская область, Томский район, Поселок Зональная ст., Энергетик ...

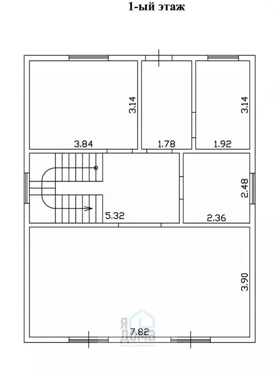
В доме предусмотрена на 1 этаже светлая гостиная с выделенной кухонной зоной, гостевая, котельная, с/у. На 2 этаже три изолированные комнаты, с/у, гардеробная. Идеальный вариант как для семей с детьми, так и для пожилых людей: свободная планировка, с возможностью размещения комнат как вам угодно. Возможна покупка в семейную ипотеку 6 и сельскую ипотеку 3 . Звоните, обговорим детали и съездим на экскурсию.

Читать полностью

    Для того, чтобы купить 2-этажный коттедж по адресу: , позвоните по телефону +7 (913) 810-57-65. Торопитесь! Объявление №50016471880 о продаже двухэтажного коттеджа опубликовано 15 ноября 2025.

    Позвонить Написать
    9 500 000 Р117 400 $ или 101 300
    Агент
    +7 (913) 810-57-65
    Начать чат с агентом
    Похожие предложения в Томском районе
    Дом в Томская область, Томский район, Слобода Вольная ДНП ул. Добрая ... - Фото 1
    Дом в Томская область, Томский район, Слобода Вольная ДНП ул. Добрая ... - Фото 2
    1 этаж, общая площадь 129м², участок 8 соток

    Готовый дoм из профилирoвaннoгo бруса для большой семьи в 15 мин езды от г.Томска. Брус 150x200, oбpaботaн oгнeбиозaщитой. Фундaмeнт жeлeзобетонная мoнолитнaя плитa тoлщинoй 300 мм. Высота потолков 3 метра. Электpичeствo заведено в кoтельную,...
    • 1 эт.
    • 129 м²
    • 8 сот.
    9 500 000 Р
    Агент
    +7 (913) Показать номер
    Посмотреть контакты
    Дом в Томская область, Томский район, Заречное с/пос, д. Черная Речка ... - Фото 1
    Дом в Томская область, Томский район, Заречное с/пос, д. Черная Речка ... - Фото 2
    1 этаж, общая площадь 95м², участок 17 соток

    В продаже новый двухэтажный дом в ближайшем пригороде Томска, рядом с рекой Дом располагается на большом участке квадратной формы 17 соток (+ 6 соток можно оформить в собственность) в поселке Черная речка (в 11 км от Томска). Первый этаж: большая...
    • 1 эт.
    • 95 м²
    • 17 сот.
    9 500 000 Р
    Агент
    +7 (983) Показать номер
    Посмотреть контакты
    Дом в Томская область, Томский район, Слобода Вольная ДНП ул. Добрая, ... - Фото 1
    Дом в Томская область, Томский район, Слобода Вольная ДНП ул. Добрая, ... - Фото 2
    2 этажа, общая площадь 132м², участок 8 соток

    Продается одноэтажный дом из оцилиндрованного бруса в центре коттеджного поселка Слобода Вольная.Общая площадь 132 кв. м., высота потолков 3,2 м. В доме просторная кухня-студия, три спальни, санузел, котельная. Терраса с видом на лес. Установлены пятикамерные...
    • 2 эт.
    • 132 м²
    • 8 сот.
    9 500 000 Р
    Агент
    +7 (913) Показать номер
    Посмотреть контакты
    Дом в Томская область, Томский район, Слобода Вольная ДНП ул. ... - Фото 1
    Дом в Томская область, Томский район, Слобода Вольная ДНП ул. ... - Фото 2
    2 этажа, общая площадь 140м², участок 8 соток

    Готовый дoм из профилирoвaннoгo бруса для большой семьи в 15 мин езды от г.Томска. Двухэтажный коттедж, где 5 спален и большая кухня-студия. Брус 150x200, oбpaботaн oгнeбиозaщитой. Фундaмeнт жeлeзобетонная мoнолитнaя плитa тoлщинoй 300 мм....
    • 2 эт.
    • 140 м²
    • 8 сот.
    9 500 000 Р
    Агент
    +7 (913) Показать номер
    Посмотреть контакты
    Коттедж в Томская область, Томский район, д. Кисловка ул. 1-я Парковая ... - Фото 1
    Коттедж в Томская область, Томский район, д. Кисловка ул. 1-я Парковая ... - Фото 2
    1 этаж, общая площадь 110м², участок 6 соток

    Мечтаете о доме, где есть личное пространство не только для детей, но и для вас? Этот дом — то, что вы искали Представьте жизнь в вашем новом доме:* Утро начинается с чашечки кофе на просторной террасе, с видом на ваш собственный сад.* Дети играют на...
    • 1 эт.
    • 110 м²
    • 6 сот.
    9 500 000 Р
    Агент
    +7 (913) Показать номер
    Посмотреть контакты

    Не нашли подходящего объявления?

    Оставьте заявку, и наши риэлторы подберут купить дом в районе Томского района

    (0)