Александровский район
Выбрать Отмена
Фильтр
На карте
Аренда помещений свободного назначения
  • квартиру
  • новостройку
  • комнату
  • пентхаус
  • таунхаус
  • дом
  • земельный участок
  • промышленные земли
  • коммерческую недвижимость
  • гараж или машиноместо
Применить Отмена
Руб.
Руб.$Бел. руб.Грн.
в месяц
в месяцв годм2 в месяцм2 в год
Сот
СотГа
м2
м2
Фильтр
К списку

Аренда помещений свободного назначения в Александровском районе

158 Подписаться на раздел
По вашему запросу нет активных предложений. Посмотрите близлежащие объекты недвижимости, которые мы собрали для вас.
Премиум
Помещение свободного назначения в Томская область, Томск ул. Владимира ... - Фото 1
Помещение свободного назначения в Томская область, Томск ул. Владимира ... - Фото 2
Данные получены с сайта ГИС Торги.Части нежилых помещений по адресу: Томская область, г. Томск, ул. Высоцкого Владимира, д. 28, строен. 2, а именно нежилого помещения подвала 36 площадью 14,4 кв. м.
7 291 Р
Агент
+7 (913) Показать номер
Посмотреть контакты
Помещение свободного назначения в Томская область, Томск Загорная ул., ... - Фото 1
Помещение свободного назначения в Томская область, Томск Загорная ул., ... - Фото 2
Номер объекта: 728662. Сдается в долгосрочную аренду помещение в бизнес-центре на Загорной, 74а. Цоколь, помещение из 2 комнат, общей площадью 89,2 кв.м, без окон. Есть отдельный вход, свой с/у. Парковка, всегда есть свободные места. Без оплаты для арендатора,...
  • -1/3 эт.
31 220 Р
Агент
+7 (913) Показать номер
Посмотреть контакты
Помещение свободного назначения в Томская область, Томск просп. ... - Фото 1
Помещение свободного назначения в Томская область, Томск просп. ... - Фото 2
Код объекта: 1961039.Уникальное предложение для вашего бизнеса Сдаётся просторное офисное помещение площадью 240 м на 5-м этаже здания в самом сердце деловой и студенческой жизни города.Ключевые преимущества локации:Центральный проспект Ленина, 41б ...
  • 5/5 эт.
432 000 Р
Агент
+7 (913) Показать номер
Посмотреть контакты
Помещение свободного назначения в Томская область, Томск Вилюйская ... - Фото 1
Помещение свободного назначения в Томская область, Томск Вилюйская ... - Фото 2
Сдадим половинку этажа в 3 этажном офисном здании.- Цена указана с учетом отделки под арендатора, на данный момент этаж без ремонта;- Подойдет под офисы, нешумное производство;- По периметру здания достаточное количество парковочных мест. Также возможно...
  • 3/3 эт.
146 750 Р
Агент
+7 (913) Показать номер
Посмотреть контакты
Помещение свободного назначения в Томская область, Томск ул. ... - Фото 1
Помещение свободного назначения в Томская область, Томск ул. ... - Фото 2
Номер объекта: 725067. Сдам нежилое помещение 84 кв.м. в цоколе в жилом кирпичном доме.Отдельный вход с улицы Елизаровых.Требуется ремонт (возможен в счет арендной платы). Есть санузел, вода. Отличная транспортная доступность и высокая проходимость места....
  • -1/4 эт.
35 000 Р
Агент
+7 (913) Показать номер
Посмотреть контакты
Помещение свободного назначения в Томская область, Томск Нижний пер., ... - Фото 1
Помещение свободного назначения в Томская область, Томск Нижний пер., ... - Фото 2
Номер объекта: 730022. Коммерческое помещение / выгодная локация / высокий трафикСдается коммерческое помещение. пер. Нижний — отличное решение для бизнеса и инвестиций. Удачное расположение, удобный подъезд и высокая проходимость делают объект максимально...
  • -1/9 эт.
30 000 Р
Агент
+7 (913) Показать номер
Посмотреть контакты
Помещение свободного назначения в Томская область, Северск ... - Фото 1
Помещение свободного назначения в Томская область, Северск ... - Фото 2
Номер объекта: 728185. Тип объекта: нежилые встроенные помещения свободного назначения площадью 384,4 кв.м.Тип предложения: АРЕНДААдрес: Томская область, ЗАТО Северск, проспект Коммунистический, 81, кадастровый номердома: 70:22:0010104:394Особенности...
  • 1/5 эт.
300 000 Р
Агент
+7 (983) Показать номер
Посмотреть контакты
Помещение свободного назначения в Томская область, Томск ... - Фото 1
Помещение свободного назначения в Томская область, Томск ... - Фото 2
Номер объекта: 730862. Сдам в долгосрочную аренду помещение, состоящее из 3 комнат, общей площадью 41,5 кв.м. С/у общий с соседним помещением. Расположен офис на 3 этаже 3 этажного кирпичного здания в центре города - ул.Красноармейская 68/1. Центр города,...
  • 3/3 эт.
41 000 Р
Агент
+7 (913) Показать номер
Посмотреть контакты
Помещение свободного назначения в Томская область, Томск просп. ... - Фото 1
Помещение свободного назначения в Томская область, Томск просп. ... - Фото 2
Собственник, без комиссии для арендатора.Светлое просторное помещение с отдельным входом.Большие панорамные окна, выходящие на проспект Ленина, высокие потолки и современное освещение делают помещение привлекательным для любого вида деятельности. В помещении...
  • 1/9 эт.
170 000 Р
Агент
+7 (913) Показать номер
Посмотреть контакты
Помещение свободного назначения в Томская область, Томск просп. ... - Фото 1
Помещение свободного назначения в Томская область, Томск просп. ... - Фото 2
Код объекта: 1961045.Сдаётся в аренду готовое помещение под кафе, бар или столовую в центре города Идеальное место для успешного бизнеса в сфере общественного питания.Локация — ключевое преимущество:Адрес: пр. Ленина, 41 (остановка ТЭМЗ ).Центр города:...
  • 2/2 эт.
102 600 Р
Агент
+7 (913) Показать номер
Посмотреть контакты
Помещение свободного назначения в Томская область, Томск Черемошники ... - Фото 1
Помещение свободного назначения в Томская область, Томск Черемошники ... - Фото 2
Сдается офисное помещение. Просторное светлое пространство, два входа, один с улицы, второй в подъезд. Коммунальные услуги включены в стоимость аренды. Бесплатная парковка. Высокие потолки. Помещение сдается единой площадью, без перегородок. Возможна...
  • 1/3 эт.
25 000 Р
Агент
+7 (913) Показать номер
Посмотреть контакты
Помещение свободного назначения в Томская область, Томск Водяная ул., ... - Фото 1
Помещение свободного назначения в Томская область, Томск Водяная ул., ... - Фото 2
Многофункциональное нежилое помещение располагается в промышленном районе города, но в жилом доме . Имеет три входа: Первый основной с шириной двери 1,5 метра, второй в подъезде, третий с торца здания. Коммуникации все городские .Предположительно можно...
  • 1/3 эт.
50 000 Р
Агент
+7 (983) Показать номер
Посмотреть контакты
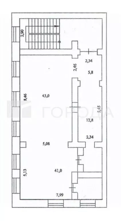
Помещение свободной планировки с отдельным входом, делиться на две части, площади 40 и 50 м2, остальные вспомогательные комнаты. Находится в центре спального района рядом школа и детский сад. На плане указана вся площадь помещения, но сдаётся правая...
  • -1/9 эт.
60 000 Р
Агент
+7 (983) Показать номер
Посмотреть контакты
Помещение состоит из четырех кабинетов площади 19,6/ 11, 8/ 8,1/ 8 м2. Дополнительно есть холл, кухня, сан.узел, два вывода под раковину. Отдельный вход со стороны памятника . При необходимости возможно изменение площади, путём сноса перегородок. Электричество...
  • 1/9 эт.
60 000 Р
Агент
+7 (983) Показать номер
Посмотреть контакты
Помещение свободного назначения в Томская область, Томск ул. ... - Фото 1
Помещение свободного назначения в Томская область, Томск ул. ... - Фото 2
Арт.Коммерческое помещение в Октябрьском районе в кирпичном доме 2009 года постройки. Хорошая транспортная доступность, парковка. Помещение находиться в цоколе с окнами. Есть два входа отдельных входа и выхода, окна пластиковые, три мокрые точки. Помещение...
  • -1/9 эт.
70 000 Р
Агент
+7 (913) Показать номер
Посмотреть контакты
Помещение свободного назначения в Томская область, Томск просп. ... - Фото 1
Помещение свободного назначения в Томская область, Томск просп. ... - Фото 2
Код объекта: 1960990.Сдаётся в аренду готовое помещение под кафе, бар или столовую в центре города Идеальное место для успешного бизнеса в сфере общественного питания.Локация — ключевое преимущество:Адрес: пр. Ленина, 41 (остановка ТЭМЗ ).Центр города:...
  • 1/2 эт.
439 000 Р
Агент
+7 (913) Показать номер
Посмотреть контакты
Помещение свободного назначения в Томская область, Томск просп. ... - Фото 1
Помещение свободного назначения в Томская область, Томск просп. ... - Фото 2
Код объекта: 2110370.Сдаётся в аренду готовое помещение под кафе, бар или столовую в центре города Идеальное место для успешного бизнеса в сфере общественного питания.Локация — ключевое преимущество:Адрес: пр. Ленина, 41б (остановка ТЭМЗ ).Центр города:...
  • -1/5 эт.
500 000 Р
Агент
+7 (913) Показать номер
Посмотреть контакты
Помещение свободного назначения в Томская область, Томский район, д. ... - Фото 1
Помещение свободного назначения в Томская область, Томский район, д. ... - Фото 2
Код объекта: 2063968.Сдаётся отдельно стоящее коммерческое здание в центре Нелюбино.Предлагаем просторное помещение общей площадью 225м в отдельно стоящем одноэтажном кирпичном здании. Это идеальный вариант для бизнеса.Локация:Здание расположено на красной...
  • 1/1 эт.
80 000 Р
Агент
+7 (913) Показать номер
Посмотреть контакты
Помещение свободного назначения в Томская область, Томск ул. Сергея ... - Фото 1
Помещение свободного назначения в Томская область, Томск ул. Сергея ... - Фото 2
Код объекта: 2070600.Без комиссии для арендатора Сдам торговое помещение площадью 90 м2. На территории есть свой ЧОП, полностью огорожена, есть парковка. Свой отдельный вход и запасной выход. Есть отопление, вода и электричество. Оплата за свет по счетчикам,...
  • 1/1 эт.
50 000 Р
Агент
+7 (913) Показать номер
Посмотреть контакты
Помещение свободного назначения в Томская область, Томск просп. ... - Фото 1
Помещение свободного назначения в Томская область, Томск просп. ... - Фото 2
Код объекта: 2025226.Уникальное предложение аренда коммерческого помещения свободного назначения в Томске Представляем вашему вниманию просторное и функциональное коммерческое помещение по адресу: проспект Кирова, 38. Это идеальное место для вашего бизнеса...
  • -1/9 эт.
80 000 Р
Агент
+7 (913) Показать номер
Посмотреть контакты
Помещение свободного назначения (557.5 м) - Фото 1
Сдается помещение свободного назначения в аренду на длительный срок до 557м2. Помещение находится вдоль трассы Томск-Колпашево и имеет большую бесплатную парковку. В Молчановском районе проживает 12 300 человек. Помещение расположено на первом этаже есть...
  • 1/1 эт.
390 250 Р
Агент
+7 (962) Показать номер
Посмотреть контакты
Помещение свободного назначения (39.3 м) - Фото 1
Помещение свободного назначения (39.3 м) - Фото 2
Сдается в аренду торговые площади в торговом центре по адресу г. Северск, ул. Славского 24. Стабильные арендаторы: «Пятерочка , «Ярче , «Бристоль , «АЯН , «Есть повод , аптека «Вита , ЗОО магазин. Помещение имеет стандартную отделку, соответствующую...
  • 1/12 эт.
51 876 Р
Агент
+7 (962) Показать номер
Посмотреть контакты
Помещение свободного назначения (40 м) - Фото 1
Торговое помещение в спальном районе. Площади сдаются от 40 до 300 м2. Якорные магазины: Магнит, Золушка, Ронокс, Красное и Белое. Высокая проходимость. Реклама на фасаде здания. Парковка. Условия по аренде обсуждаются индивидуально. Арендные каникулы...
  • 1/1 эт.
30 800 Р
Агент
+7 (962) Показать номер
Посмотреть контакты
Помещение свободного назначения в Томская область, Томск ул. Никитина, ... - Фото 1
Помещение свободного назначения в Томская область, Томск ул. Никитина, ... - Фото 2
Уважаемые арендаторы Предлагаем вашему вниманию офисное помещение в самом сердце Кировского района — идеально подходящее для развития вашего бизнеса Это просторный кабинетный офис в престижном районе, через дорогу школа Перспектива , это отличная локация...
  • 1/10 эт.
117 715 Р
Агент
+7 (913) Показать номер
Посмотреть контакты
Помещение свободного назначения в Томская область, Томск Украинская ... - Фото 1
Помещение свободного назначения в Томская область, Томск Украинская ... - Фото 2
Сдам торгово-офисное помещение 105кв.м., 2 входа, санузел, бойлер, пожароохранная сигнализация. Удобное месторасположение, парковка.
  • -1/10 эт.
45 000 Р
Агент
+7 (983) Показать номер
Посмотреть контакты
Помещение свободного назначения в Томская область, Томск просп. ... - Фото 1
Помещение свободного назначения в Томская область, Томск просп. ... - Фото 2
Сдам в аренду помещение 60 кв.м - 1 этаж- отдельный вход- 20 кВт- панорамное окно- с/уОбъект находится на оживленном перекрестке с высоким автомобильным и пешеходным трафиком. Рядом остановки общественного транспорта, жилой сектор.Без Комисси для Арендатора....
  • 1/5 эт.
60 000 Р
Агент
+7 (913) Показать номер
Посмотреть контакты
Данные в объявлении обновляются раз в сутки. Подробные параметры объекта, актуальные данные и НДС посмотрите на сайте электронных торгов.
  • 1 этаж
10 670 Р
Агент
+7 (913) Показать номер
Посмотреть контакты
Данные в объявлении обновляются раз в сутки. Подробные параметры объекта, актуальные данные и НДС посмотрите на сайте электронных торгов.
  • 1 этаж
16 061 Р
Агент
+7 (913) Показать номер
Посмотреть контакты
Помещение свободного назначения в Томская область, Томск тракт ... - Фото 1
Помещение свободного назначения в Томская область, Томск тракт ... - Фото 2
Предлагаем в аренду помещение 240 кв.М., при необходимости есть возможность увеличить до 330кв.М., по адресу: Иркутский тракт дом 26. Ранее в помещение располагался банк ВТБ. Инфраструктура банка (сейфовые двери, хранилище, кассовые зоны, кабинет руководителя,...
  • 1/10 эт.
240 000 Р
Агент
+7 (983) Показать номер
Посмотреть контакты
Помещение свободного назначения в Томская область, Томск просп. ... - Фото 1
Помещение свободного назначения в Томская область, Томск просп. ... - Фото 2
Сдается в аренду торговая площадь на проспекте Фрунзе, 86 идеальное место для развития вашего бизнеса. В настоящее время здесь успешно функционирует магазин женской одежды, что свидетельствует о высокой проходимости и привлекательности локации. Просторные...
  • 1/9 эт.
200 000 Р
Агент
+7 (913) Показать номер
Посмотреть контакты

Не нашли подходящего объявления?

Оставьте заявку, и наши риэлторы подберут псн в районе Александровского района

(0)